BASIC PANEL CONFIGURATIONS

TECHNICAL DATA
| Rated voltage, kV | 12; 17,5; 24 |
| Rated current, A | Up to 4000 |
| Rated short-circuit withstand current, kA | Up to 31,5 |
| IAC classification (IEC62271-200) | AFLR 31,5 kA/1s |
| Class | LSC2B-PM |
| IP | IP4X; IP41 |
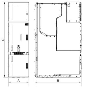
DIMENSIONS
| Voltage | Width A, mm | Depth B, mm | Height C, mm |
| 12kV | 600, 750, 1000 | 1350 | 2348 |
| 17,5kV | 600, 750, 1000 | 1350 | 2348 |
| 24kV | 600, 750, 1000 | 1590 | 2348 |




